33
$1,930,000 Sale
Listed 23 hours ago
31559 Kenney Avenue
· 3
· 3
· 2
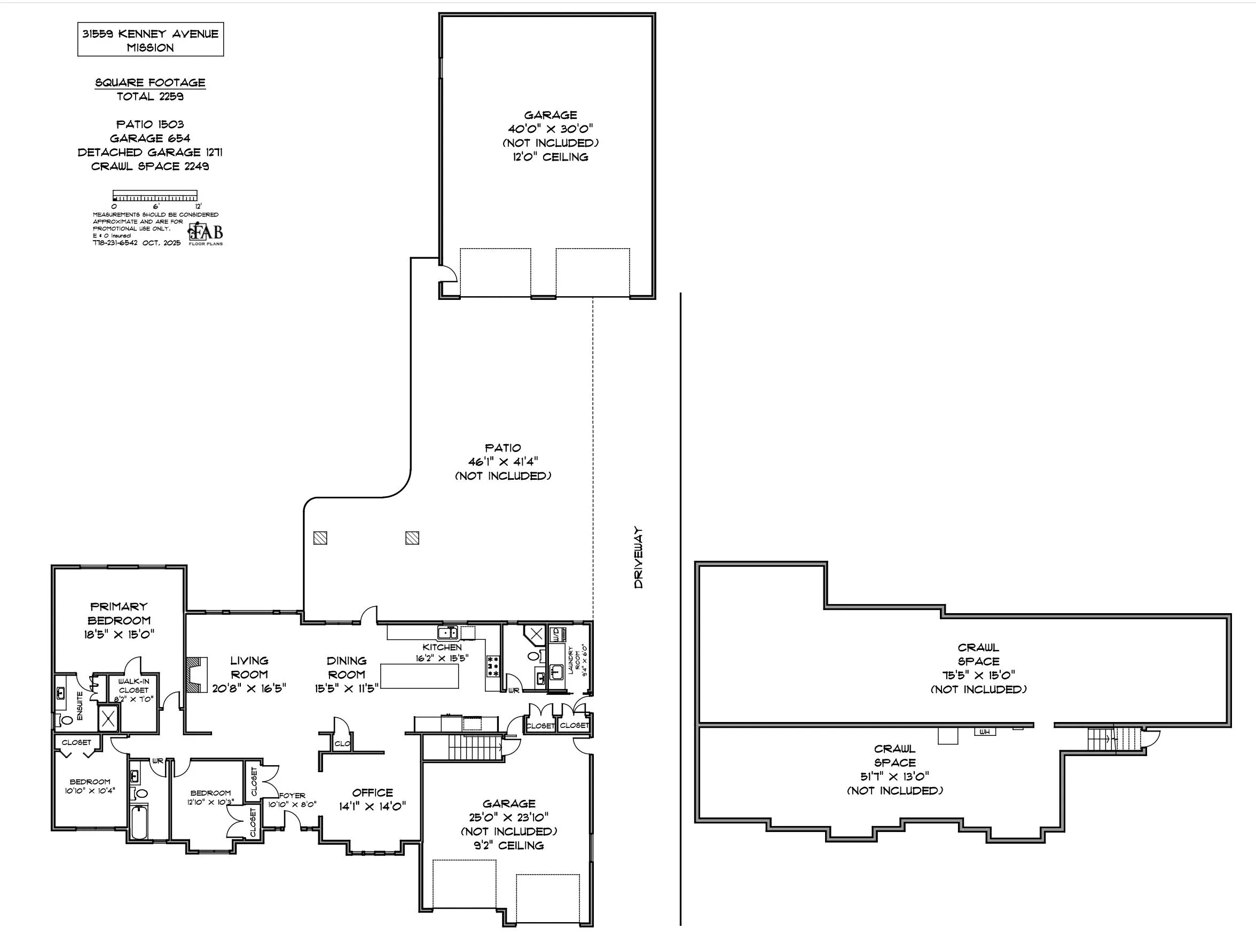
· 2259
Key Facts
Key facts for 31559 Kenney Avenue
Property Type
House, Rancher/Bungalow
Parking
2 garage, 18 parking
MLS #
R3058438
Size
2259 sqft
Basement
Crawl Space
Listed on
-
Lot size
42734.00 sqft
Tax
$7,261.94 /yr
Days on Market
-
Year Built
2016
Maintenance Fee
-
Description
Luxury meets practicality in this newer, custom-built rancher on nearly an ACRE of fully, flat, usable land- backing onto green space. All on one level, offering 3 bedrooms + a large den, 3 full baths, and open-concept living. With high-end finishes, tilt-and-turn windows, Hardie board exterior, and... an oversized fridge in an oversized kitchen with ample cabinets & counter space. Detached 1,200 sqft garage with 12-ft ceilings, & 100-amp power—plus RV parking & space for 18 cars- second attached oversized double garage. Still under warranty, surrounded by estate homes near the golf and country club. Comfort of city water, and option to tie in to city sewer. 5 feet -2,200 sqft crawl space. Walk to tee off or enjoy nearby parks and trails. FIRST Open House Saturday Oct 18th 2:00-4:00pm
Similar Properties (No results)
Room Types
Living Room
-
Dimensions 16'5 x 20'8
339.28 sqft
Dining Room
-
Dimensions 11'5 x 15'5
176.01 sqft
Kitchen
-
Dimensions 15'5 x 16'2
249.24 sqft
Courtesy of: eXp Realty